


7 night minimum
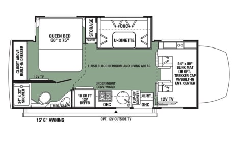
Class C Motor Home
7 night minimum
Class C Motor Home
Class C Motor Home
Class C Motor Home
Class C Motor Home
Class C Motor Home
Class C RV rentals in Portland, OR cost an average of $246 per night, with prices starting from $142. Portland offers convenient access to Oregon's outdoor attractions including Mount Hood, the Columbia River Gorge and the Oregon Coast. Class C motorhomes provide a good balance of driving ease and living space, making them popular for exploring the Pacific Northwest's national forests, state parks and coastal destinations.